Спроектированный с перспективой расширения, трехэтажный многоквартирный дом Afsharian’s house построен в типичной застройке города Керманшах, Иран. Проект необычного комплекса разработан тегеранской студией ReNa design studio. Особая реализация здания позволяет расширить его по вертикали на несколько этажей в будущем.
На фоне обычной застройки Керманшаха, этот дом Afsharian’s house выглядит как скульптура, местная достопримечательность. Особой гордостью команды ReNa design studio можно назвать отличный фасад, отделанный древесными панелями. При этом фасад отделан древесиной только на тех поверхностях, где имеются окна (в том числе и в области входной двери). Остальная часть фасада представляет собой бетонную поверхность. Сужение здания к основанию немного уменьшило площадь здания на первом уровне, но зато обеспечило его собственной небольшой грядкой, где жители дома смогут высаживать цветы и другую растительность.
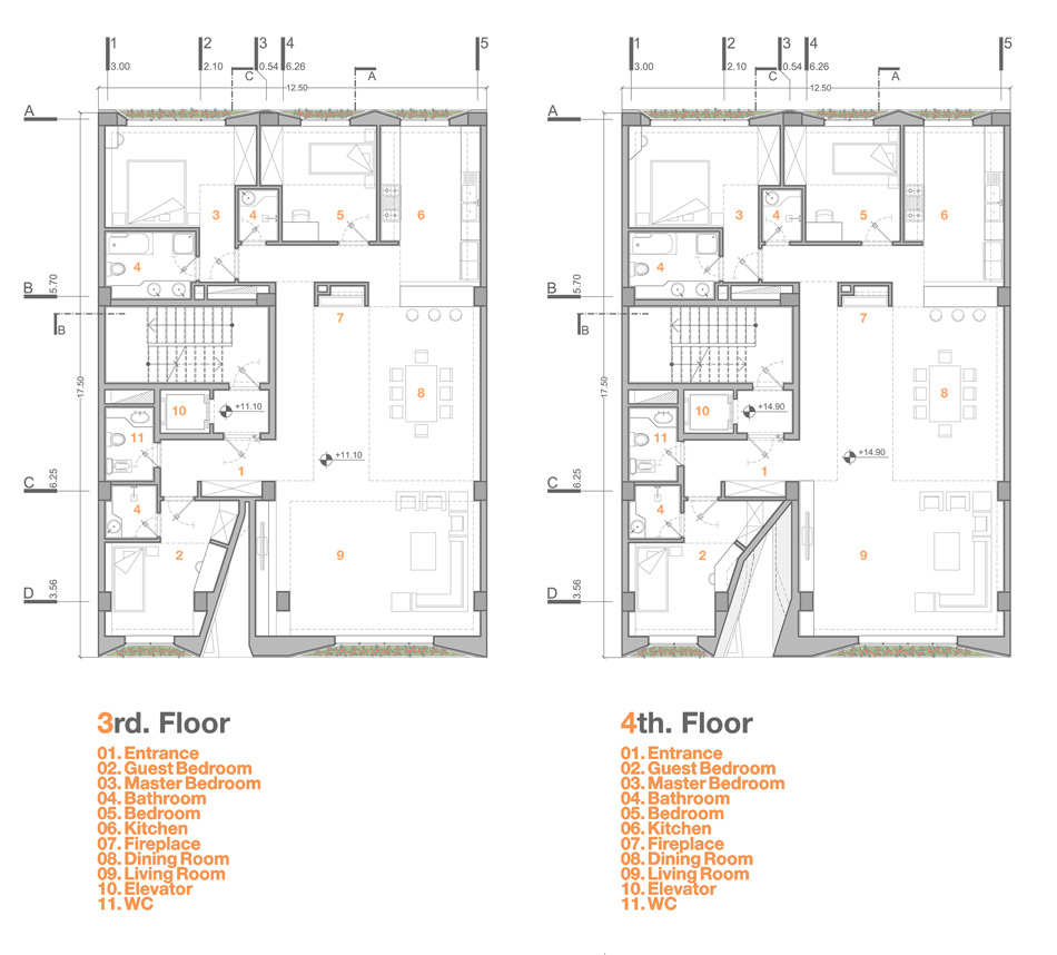
В настоящее время стильный деревянный дом Afsharian’s house трехэтажный и суммарная площадь квартир в нем составляет всего 312 кв. м. В дизайне интерьеров продолжается тема универсальности. Здесь царит яркое освещение, сочетание бетона, древесины и кирпичной кладки.
Фото | Стильный деревянный дом. Проект ReNa design studio














По материалам: www.designboom.com.
