Международная студия A-cero Architects поделилась фотографиями одного из последних своих проектов, разработанного по заказу отеля Iniala на побережье Бирмы близ Пхукета, Малайзия. Пляжный дом под названием Villa Bianca находится прямо на берегу Бенгальского залива.
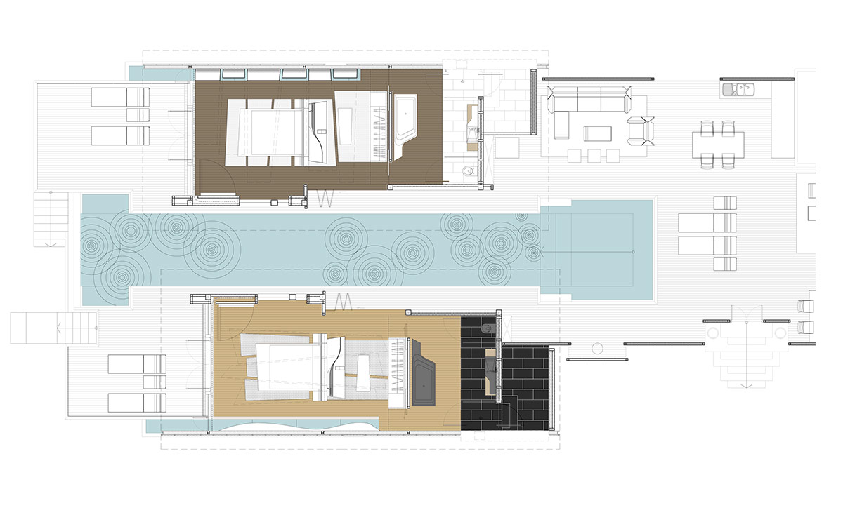
Необычная форма всех помещений Villa Bianca продиктована изогнутой крышей. Фасады виллы повернуты к морю. При этом комплекс условно разделен на две части. Между ними разместился небольшой внутренний дворик с открытым бассейном, простирающимся на всю длину комплекса.
Вилла разделена на два номера люкс с полностью независимыми друг от друга удобствами. Интерьер номеров отделан дорогой древесиной, сочетающийся изогнутыми белыми панелями, подчеркивающими общую тему интерьера и придающими ему футуристичности.
Вся мебель в Villa Bianca изготовлена студией A-cero Architects в единственном экземпляре – это эксклюзив. Дополнительной роскоши и комфорта в номера привносят грамотно расставленные источники света. Весь декор интерьера изготовлен из высококачественного поликарбоната, который позволяет воплотить в жизнь любой полет фантазии дизайнеров.
Пляжный дом на побережье Бирмы построен на участке 1 500 кв. м. и имеет жилую площадь 747,81 кв. м. Каркас здания кирпичный, а его фасады отделаны декоративным камнем и древесиной. Вилла эксплуатируется с летнего сезона 2013 года.
Фото | Дом на побережье Бирмы. Проект A-cero Architects



















По материалам: designboom.com.
